MB-104 PASSIVE
Le système MB-104 Passive pour fenêtre et porte à rupture thermique et à isolation thermique supérieure répond à toutes les exigences qui s’appliquent aux composants utilisés dans le bâtiment passif.
Ce système est destiné à réaliser des éléments architecturaux extérieurs : divers types de fenêtres, portes vestibules et structures spatiales, qui sont caractérisés, en plus d'une excellente isolation thermique, par une très bonne isolation phonique, l'étanchéité à l'eau et à l'air et une résistance structurelle élevée.
Les profilés du système MB-104 Passive sont disponibles en deux versions: SI et AERO, en fonction des exigences d’économies d'énergie thermique.
Les paramètres des portes et fenêtres réalisées en éléments du système MB-104 Passive dépassent les exigences actuelles des règlements et normes les plus stricts en vigueur – le système MB-104 Passive est un système dédié au bâtiment passif et aux constructions économes en énergie.
Système de fenêtres et
Avec ses performances d’isolation très élevées, le système à rupture thermique MB-104 Passive pour porte et fenêtre répond à toutes les exigences pour les éléments de construction utilisés dans les maison passives et bénéficie des certificats issus par le Passivhaus Institut (Institut de la maison passive) de Darmstadt. Le MB-104 PASSIVE est destiné à réaliser des éléments architecturaux extérieurs : différents types de fenêtres, portes, vestibules, vitrines et constructions spatiales qui offrent d’excellentes performances thermiques et acoustiques et une résistance et étanchéité à l’eau et à l’air sans pareil.

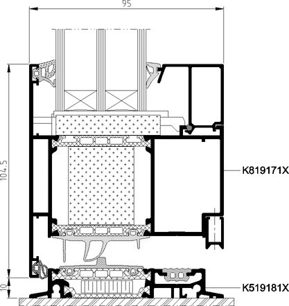
MB-104 PASSIVE Système pour fenêtre et porte à isolation thermique supérieure
Isolation thermique pour la fenêtre ouverte à partir
UW de 0,53 | W/(m2K)
Étanchéité au vent
class C5/B5 | PN-EN 12210:2001
Étanchéité à l’eau
class AE 1800 | PN-EN 12208:2001
Étanchéité à l'air
class 4 | PN-EN 12207:2001




Les avantages du système MB-104 Passive:
- les fenêtres en version MB-104 Passive SI et MB-104 Passive Aero sont certifiées par le Passive House Institute Darmstadt
- excellentes performances d'isolation thermique pour fenêtre ouvrable: UW à partirde 0,53 W/(m2K) /et, pour porte: UD à partir de 0,62 W/(m2K)
- performances d’étanchéité et d’isolation qui dépassent les paramètres standards
- une large gamme de vitrage – jusqu'à 81 mm
- les portes extérieures sont disponibles en versions à vitrage ou à panneaux – c’est une porte d'entrée idéale pour une maison moderne
